|
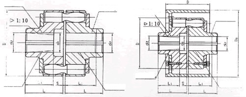
HL type elastic pin coupling is referred to as "elastic pin coupling". It belongs to the pin coupling. It has a large structure, simple and reasonable, convenient maintenance, interchangeable on both sides, long life and large allowable. Axial swaying, with cushioning, shock absorption, wear resistance and other properties. The HL type elastic pin coupling shaft hole type has a cylindrical shape (Y), a conical shape (Z) and a short cylindrical shape (J). The shaft hole and keyway are processed according to the national standard GB3852-83 "Coupling shaft column and keyway form and size". The HL-type elastic pin coupling is also made of 45# cast steel precision casting of the main body of the nylon pin coupling. The shaft hole and the keyway are made by drawing, and the elastic pin is made of MC nylon turning. It has the ability to compensate for the misalignment of the two axes. The elastic parts are sheared during operation and the working reliability is weak. It is suitable for the medium speed transmission shaft system which requires very low requirements, and is not suitable for working conditions with high work reliability requirements. ![]() ![]() |



